多模分频器——递减计数器设计
- 1.异步递减计数器
- 1.1异步计数器原理图
- 1.2异步计数器仿真结果
- 2.同步计数器
- 2.1同步计数器原理
- 3.性能参数对比
- 4.D触发器原理分析
导师的项目是低功耗,尽量减少功耗。看到GPS_-TSMC28N_PLL_DIV用的是异步计数器。产生疑问,为什么用异步计数器而不用同步计数器。
利用相同的D触发器,分别设计同步计数器和异步计数器,在Cadence平台仿真验证。
下面分别设计3位的递减计数器,带置数端和置数使能
1.异步递减计数器
1.1异步计数器原理图

异步递减计数器,用带置数功能的D触发器实现,每一个D触发器的Q-和D连接,构成二分频器。PI是置数端,LD是置数使能(高点平有效)。开始从S3 S2 S1开始递减计数,当Q3 Q2 Q1=000时,经过或非门输出高电平,使能置数,使的Q3 Q2 Q1= S3 S2 S1。
注意:此处的置数端为异步置数,当LD=1时,立即置数,图中化成了与非门,应为或非门,置数高电平有效

cadence仿真电路如图所示。
1.2异步计数器仿真结果
这里不放仿真结果图片,仿真功能正常。
2.同步计数器
2.1同步计数器原理
-
用时序逻辑设计的方法,画出真值表:
-
根据真值表画卡诺图
-
根据卡诺图化简逻辑表达式
根据逻辑表达式,搭建电路图,采用与异步计数器同样的D触发器。
3.性能参数对比
| 时钟频率 | 异步 | 同步 |
|---|---|---|
| 100M | 1.76uA | 3.37uA |
| 2G | 33.4uA | 66.4uA |
| 3G | 无法工作 | 无法工作 |
| 时钟频率 | 时钟边沿 | 异步tplh | 同步tplh | 异步tphl | 同步tphl |
|---|---|---|---|---|---|
| 100M | 100p | 220p | 260p | 170p | 180p |
| 2G | 5p | 170p | 201p | 116p | 113p |
同步和异步计数器最高工作频率近似均在2-3G,传播延时差距不大,但同步计数器功耗较大,由于其包含有大量的组合逻辑电路。
4.D触发器原理分析

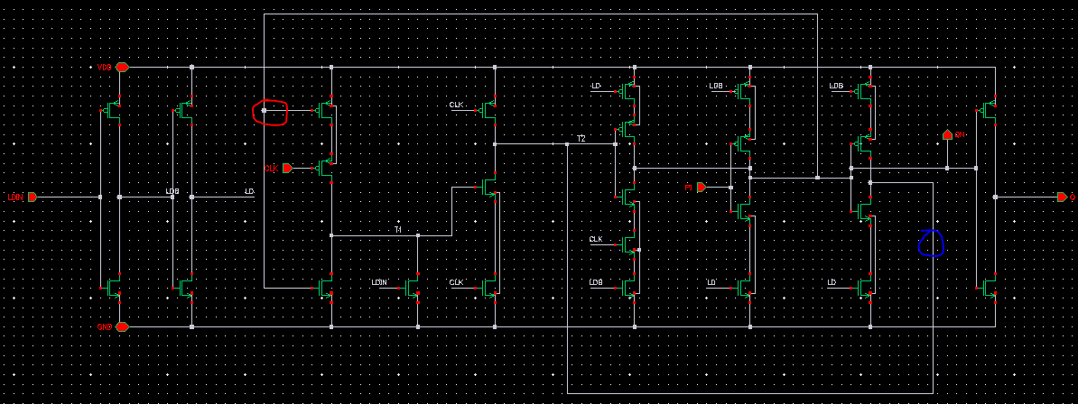
如图为计数器中用到的D触发器,带异步置数功能。红色的为数据端,如1.1节所示的异步计数原理图,将Q-和数据端DATA接在一起,构成递减计数器(也可以看作二分频器)。PI是置数端,LD是置数使能(高点平有效),LD=1时,Q=PI.
下面分析D触发器的功能:假设Q-与D端未连接,分析正常触发器的功能。
假设正常计数:LD=0,LDB=1;LDIN=0
clk=0时:T1=D-,T2=1
clk=1时:T1=D-(保持clk=0时的数据),T2=D,Q-=D-,Q=D。
置数功能:
假设LD=1,LDB=0;LDIN=1
则PI经过两级反相器传递给Q。完成置数功能。
问题:蓝色线的作用是什么?是否可以去掉
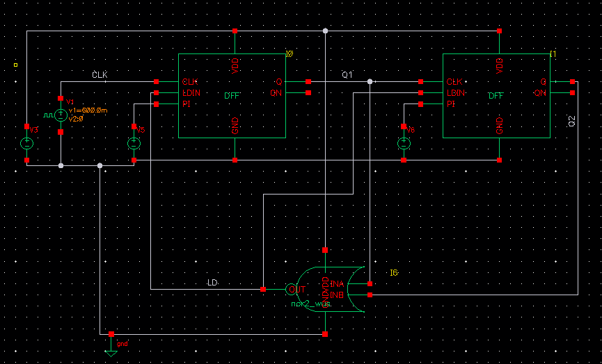
将蓝色反馈回路去掉后搭建如下电路仿真触发器的功能。

如图所示为一个2位的递减计数器,已经除去了蓝色反馈线。仿真结果如下

图a 无蓝色反馈线的异步递减计数器仿真结果

图b 带蓝色反馈线的异步递减计数器仿真结果
图a和图b对比结果,在Q2Q1=00之后,计数器重新置数为11,无蓝色反馈线的触发器的Q1会立即再拉低,导致Q2Q1=11状态无法保持一个时钟周期。
假设,在某个上升沿之后,Q2Q1=00,此时LD=1,立即置数Q1=1,则Q-=0。
此时T2=0;上升沿之后,clk仍然为高电平clk=1;此时会将T2=0传递到Q端,使得Q立即拉低。
如果带有蓝色反馈线:
在某个上升沿之后,Q2Q1=00,此时LD=1,立即置数Q1=1,则Q-=0。与此同时,由于蓝色反馈线的存在会使得T2=1,之后clk为高电平clk=1;此时会将T2=1传递到Q端,Q端数据不变。
同理如果,假设在某个上升沿之后,Q2Q1=00,此时LD=1,立即置数Q1=0,则Q-=1。
当T2=1时,上升沿之后,clk仍然为高电平clk=1;此时会将T2=1传递到Q端,使得Q立即拉高,出现错误。
总结:蓝色反馈线的存在会在置数的同时将T2与Q端数据保持一致,防止在上升沿置数之后clk=1的时候,将T2传递给Q,造成错误。
2020.08.31更新
跟导师聊过之后,导师提出质疑,理论上同步计数器时钟信号驱动更多mos管的栅极,而本次仿真验证的过程用的是cadence理想时钟,驱动能力相当于无穷大。真实的仿真过程是双模预分频输出驱动连个计数器,而双模预分频驱动能力有限,驱动太多mos管限制工作频率提高。
最后
以上就是聪慧山水最近收集整理的关于多模分频器——递减计数器设计(cadence)1.异步递减计数器2.同步计数器3.性能参数对比4.D触发器原理分析的全部内容,更多相关多模分频器——递减计数器设计(cadence)1内容请搜索靠谱客的其他文章。
发表评论 取消回复